Wir haben 16 Wohnungen in St. Michael zu vermieten
Sollten sie Interesse an einer Wohnung haben, melden sie sich bitte bei:
Silke Galler (silke.galler@boechzelt-immobilien.at), Tel: 03512/82237-11
Website: www.boechzelt-immobilien.at
Böchzelt Immobilien GmbH – Verwaltung & Maklerbüro – Ihr Spezialist rund um Immobilien
Aschmannweg 4a, 8770 St. Michael
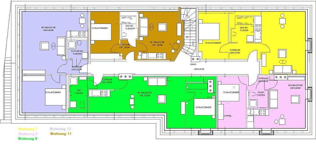
Adresse: Aschmannweg 6, 8770 St. Michael Gesamtplan:
alle Preise verstehen sich inkl. Betriebskosten, ohne Heizung und Strom.



